STEP AHEAD IN MODULAR SOLUTIONS
Содержимое
Модульные конструкции
Модульные строительные конструкции UÇE MÜHENDİSLİK
Эковиллы

Комплектация модульных домов и Эковилл, сдаваемых "под ключ", включает всё необходимое для проживания: стены из бетопановых панелей: внешние – толщиной 7 см., а внутренние – толщиной 5 см., подвесной потолок из гипсокартона на уровне 250 см., ПВХ окна, парадную железную и межкомнатные деревянные двери, внутреннее электрокабелирование и освещение, сантехнику (унитаз, раковину и поддон для душкабины) со смесителем, трапециевидную крышу с водосточной системой и подкровельным теплоизоляционным материалом – стекловатой.
Клиент обеспечивает за свой счёт: фундаментные работы, внутреннюю стяжку после монтажа конструкции и напольное покрытие, а также определяет цвет стены и кровли.
В отличие от модульных домов, Эковиллы предполагают более изящный проект, вплотную приравнивающий их к виллам, – с большими окнами, обеспечивающими доступ значительного светового потока, террасой для отдыха на открытом воздухе, просторным балконом и так далее.
Заказчик модульных домов или Эковилл в итоге получает:
1. Комфортабельное жилье, рассчитанное на долгосрочное проживание, по удобству ничем не уступающее традиционным домам, а по качеству материала и скорости монтажа даже превосходящее их.
2. Основу для дальнейшего благоустройства – сайдинга, облицовки, мощения и других видов внутренних и внешних отделочных работ – словом, всего того, что позволяют возможности и фантазия.
3. Надёжную конструкцию, проверенную и временем, и опытом на предмет влаго- и сейсмоустойчивости как в городской среде, так и в горных районах.
4. Оперативное решение, отвечающее требованиям текущего положения и находящее своё полное воплощение в максимально сжатые сроки.
Проекты Эковилл
Одноэтажные Эковиллы
1.

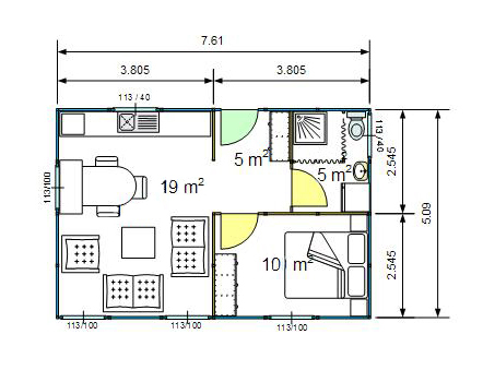
39 м2
Гостиная + кухня – 19 м2
Прихожая – 5 м2
Спальня – 10 м2
Санузел – 5 м2
2.

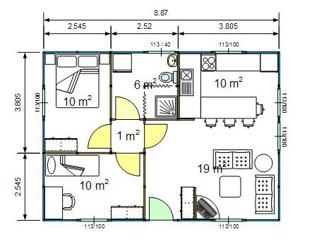
48 м2
Гостиная + кухня + коридор + прихожая – 29 м2
Спальня – 6 м2 + 8 м2
Санузел – 5 м2
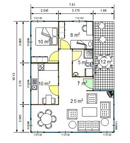
3.

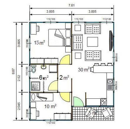
56 м2
Гостиная – 19 м2
Кухня – 10 м2
Спальня – 10 м2 + 10 м2
Санузел – 6 м2
Коридор – 1 м2
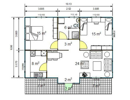
4.

68 м2
Гостиная + кухня + прихожая – 34 м2
Коридор – 3 м2
Спальня – 10 м2 + 15 м2
Санузел – 6 м2
5.

68 м2 (63 м2 + 5 м2 терраса)
Гостиная + кухня + прихожая – 30 м2
Коридор – 2 м2
Спальня – 10 м2 + 15 м2
Санузел – 6 м2
Терраса - 5 м2
6.

77 м2
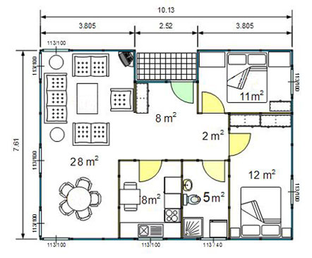
Вход – 3 м2
Гостиная – 28 м2
Прихожая – 8 м2
Коридор – 2 м2
Кухня – 8 м2
Спальня – 11 м2 + 12 м2
Санузел – 5 м2
7.

77 м2 (65 м2 + 12 м2 терраса)
Прихожая – 7 м2
Терраса – 12 м2
Гостиная – 25 м2
Кухня – 10 м2
Спальня – 8 м2 + 10 м2
Санузел – 5 м2
8.

90 м2 (73 м2 + 17 м2 терраса)
Прихожая – 2 м2
Коридор – 3 м2
Гостиная – 24 м2
Терраса – 17 м2
Кухня – 8 м2
Спальня – 15 м2 + 15 м2
Санузел – 6 м2
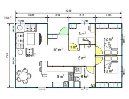
9.

96 м2
Вход – 3 м2
Прихожая – 10 м2
Коридор – 7 м2
Гостиная – 29 м2
Кухня – 8 м2
Спальня – 9 м2 + 12 м2 + 12 м2
Санузел – 6 м2
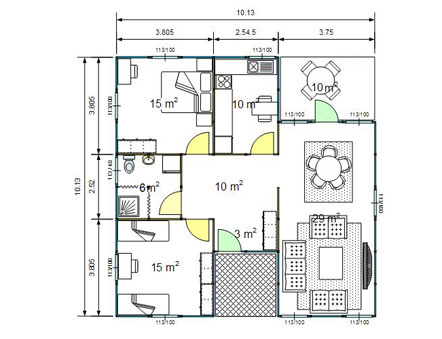
10.

103 м2 (93 м2 + 10 м2 терраса)
Вход – 5 м2
Прихожая – 13 м2
Гостиная – 29 м2
Кухня – 10 м2
Спальня – 15 м2 + 15 м2
Санузел – 6 м2
Терраса – 10 м2
Двухэтажные Эковиллы
1. 1-ый этаж

68 м2 (62 м2 + 6 м2 терраса)
Прихожая – 8 м2
Лестничная площадка – 10 м2
Гостиная – 25 м2
Кухня – 13 м2
Санузел – 6 м2
Терраса – 6 м2
1. 2-ой этаж

68 м2
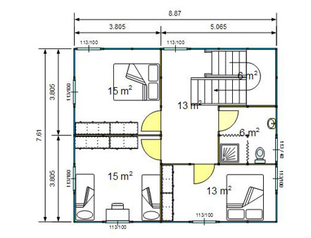
Лестничная площадка – 6 м2
Коридор – 13 м2
Спальня – 13 м2 + 15 м2 + 15 м2
Санузел – 6 м2
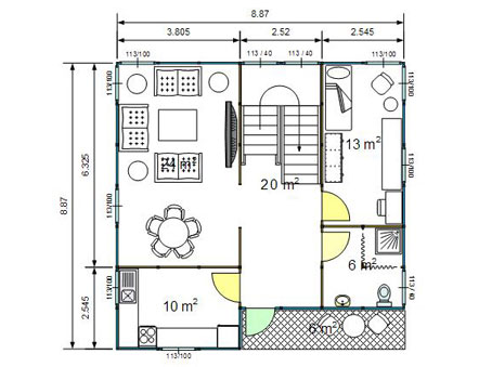
2. 1-ый этаж

79 м2 (73 м2 + 6 м2 терраса)
Прихожая + лестничная
площадка – 20 м2
Гостиная – 24 м2
Кухня – 10 м2
Спальня – 13 м2
Санузел – 6 м2
Терраса – 6 м2
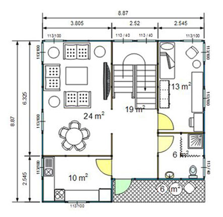
2. 2-ой этаж

79 м2 (73 м2 + 6 м2 балкон)
Коридор + лестничная площадка – 20 м2
Спальня – 13 м2 + 15 м2 + 19 м2
Санузел – 6 м2
Балкон – 6 м2